Entrepot
PORTET-SUR-GARONNE (31120)
- Surface 910 m²
- Pièce(s) NC pièce(s)
- Chambre(s) NC chambre(s)
- Terrain NC
Portet-sur-Garonne – Sud-Ouest de Toulouse : Entrepôt neuf à vendre de 910,79 m² avec rochelle et parkings privatifs.
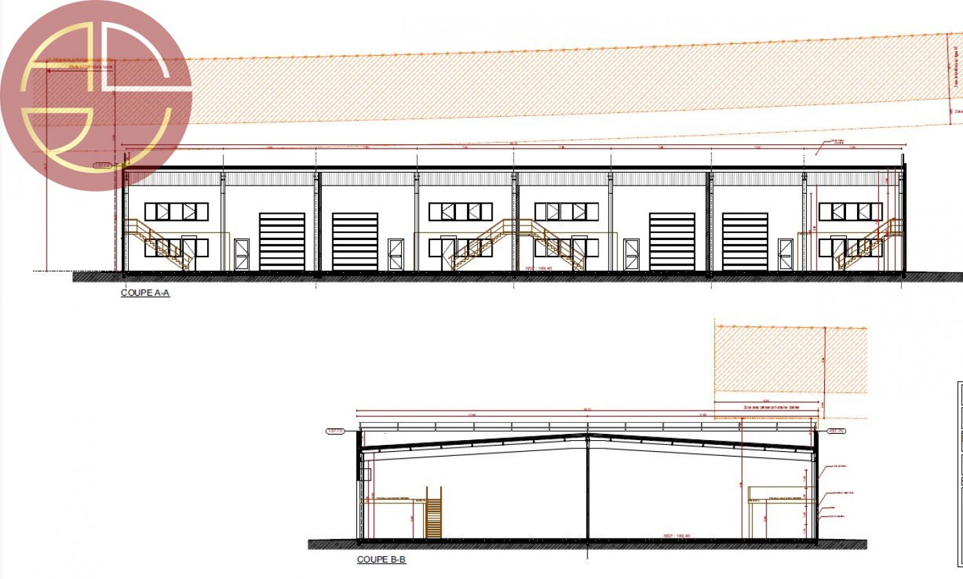
ADE IMMO PRO vous propose à la vente un entrepôt neuf de 910,79 m², situé à Portet-sur-Garonne, au sud-ouest de Toulouse. Ce bien fait partie d’un ensemble immobilier neuf et sécurisé, conçu pour répondre aux besoins des entreprises industrielles, artisanales ou logistiques.
Un emplacement stratégique et accessible.
L’entrepôt bénéficie d’une localisation idéale, à proximité immédiate d’un accès autoroutier et d’un arrêt de bus, facilitant les déplacements professionnels et les flux logistiques. Le site est parfaitement adapté à une activité nécessitant un accès rapide à la rocade toulousaine.
Caractéristiques de l’entrepôt à vendre :Surface totale : 910,79 m² - Hauteur sous plafond : 7 à 8 mètres - 1 porte sectionnelle pour véhicules de transport - Rochelle de 126,32 m² : aménageable en bureaux ou en espace de stockage - Trappes de désenfumage - Bardage double peau : excellente isolation thermique et performance énergétique - 12 places de stationnement privatives, dont possibilité PMR
Un entrepôt neuf, fonctionnel et évolutif.
Ce bâtiment offre des conditions de travail optimales et une excellente modularité, notamment grâce à sa rochelle pouvant être transformée selon vos besoins. Sa construction récente garantit un niveau de confort et de sécurité conforme aux dernières normes techniques - Livraison prévue : courant 2025
Pour plus d’informations ou organiser une visite, contactez Florence – ADE IMMO PRO
Notre barème d'honoraires











